The Climate Change Act (Northern Ireland) 2022 has set an ambitious target that Northern Ireland must meet at least 80% of its electricity consumption from renewable sources located in NI by 2030. Achieving this will require not only more renewable generation, but also smarter ways to store and manage energy.
ABO Energy previously achieved planning approval for a 2-hour duration energy storage facility at the Magherafelt BESS site. However, to meet the needs of the electricity network the project is being redesigned as a 4-hour facility, maintaining a capacity of 200MW as approved under planning application LA09/2023/0724/F.
We are now carrying out pre-application community consultation to inform our approach to the planning application for the project.
ABO Energy has taken the opportunity to review the consented development in light of technological advances and a revised planning application has been submitted to Mid Ulster Council October 2025. The planning application is available for viewing on the Mid Ulster Council Planning Portal.
Please click on the headings below to view the posters in detail.
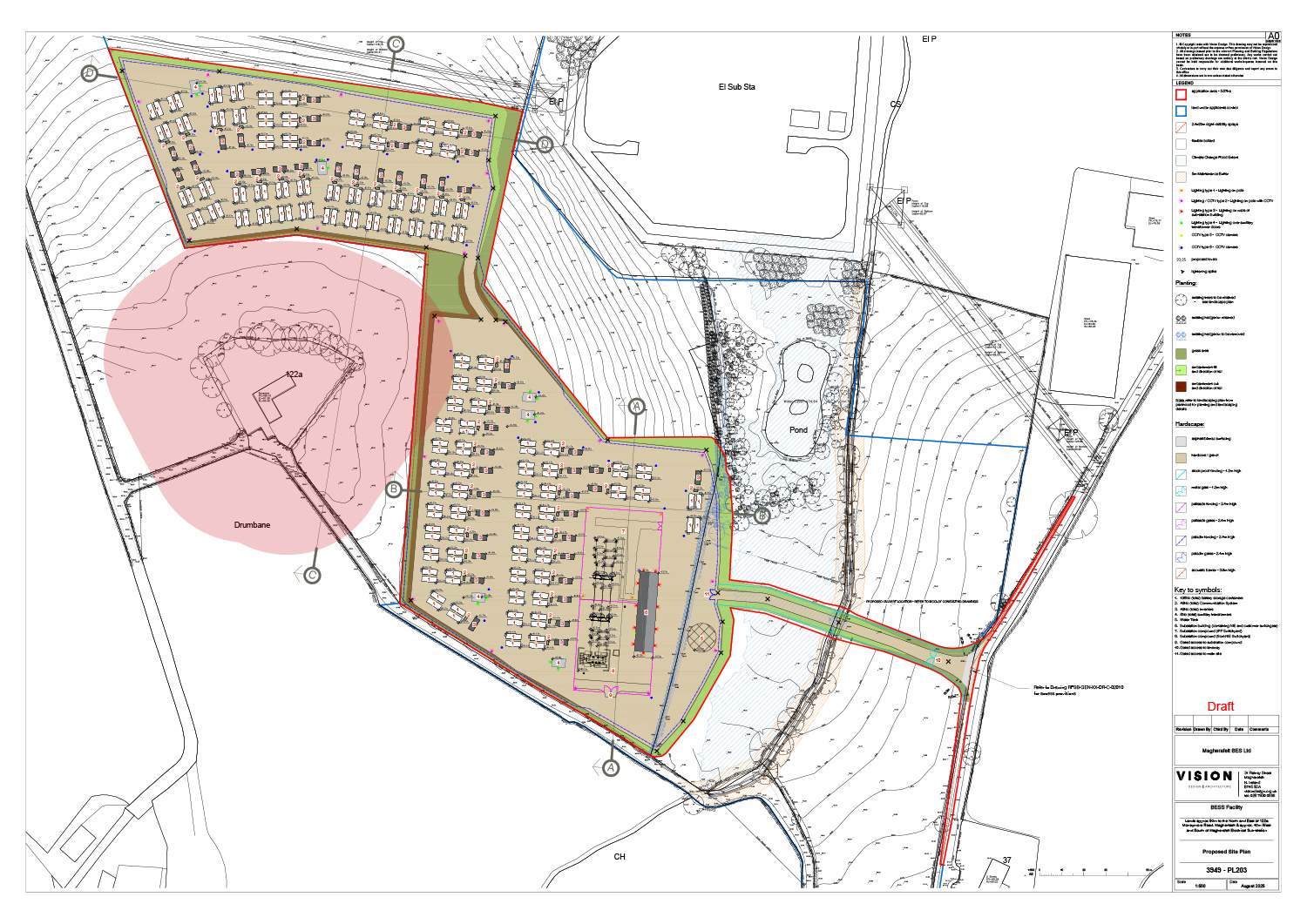
The proposed BESS site is located near Ballymoughan Road, Magherafelt and comprises 9.65 hectares of pastoral grazing land, with approximately 3.54 hectares earmarked for development. It is located within the countryside as designated by the Magherafelt Area Plan 2015. The site features varied topography, natural boundaries including hedgerows and a watercourse, and is not subject to any landscape or environmental designations.
It is important to note that the site area and proposed access remain unchanged from the previous approval. The internal changes to the site layout and proposed battery technology allow for the duration of the BESS to increase from 2 hours to 4 hours.
Longer duration storage is required to help meet Northern Ireland’s renewable electricity consumption target of at least 80% by 2030 and help achieve security of electricity supply.
As previously proposed it will be connected to the substation by way of underground cabling. The route will be identified and cabling installed and controlled by NIE Networks.
Battery storage brings a range of benefits to Northern Ireland and plays a critical role in the clean energy transition by:
In addition to supporting national energy goals, battery storage projects can bring local benefits. These include improved grid resilience, potential investment opportunities, and support for local jobs during construction and operation.
This webpage is part of an on-going consultation process being carried out by ABO Energy with members of the local community and other interested parties to inform the submission of a planning application for the Magherafelt BESS.
We would encourage everyone with an interest in the project to give us their feedback. To do this you can use the following methods:
| Website | www.magherafeltbess.com (live from Tuesday 16th September 2025 – Tuesday 14th October 2025 inclusive) |
|
Post |
Magherafelt BESS |
| magherafeltbess@belmont.online |
To be considered during the design process, feedback must be received no later than Tuesday 14th October.
If you have any queries regarding the information presented as part of this community consultation process, please contact us directly using the details provided. Belmont – ABO Energy’s communication and engagement partner on this project – can be contacted via telephone on +44 28 9072 6059 between the hours of 10am – 4pm, Monday – Friday.
Please note: Any comments made to ABO Energy and/or the project team during this pre-application community consultation process are not representations to the planning authority. If a formal planning application is submitted, local advertisement and neighbour notification will take place and there will be an opportunity to make representations to the planning authority at that time.
ABO Energy is undertaking extensive environmental assessments as part of its preparation of a planning application for the proposed Magherafelt BESS. A selection of some of the key environmental considerations are included below:
All considerations are site specific and are informed by detailed surveys and assessments. For the purposes of this pre-application community consultation process we have selected key topics to provide further information on – these are displayed on the project information boards available to download above.
Your feedback will be considered in detail as work progresses towards finalising our designs and collating all the relevant planning application documents.
It is intended that a full planning application will be submitted to Mid Ulster District Council by the end of 2025. The Council will then process and decide the outcome of the application.
If planning permission is granted, and all other necessary consents are achieved, it is anticipated that the project will take approximately 9-12 months to construct and become operational.
If you have any questions about the Magherafelt BESS project, or would like to share your feedback, please complete the form below:

Michael Mullan
Tel. +44 28 9099 6445
michael.mullan(at)aboenergy.com

Daniel McLaughlin
Director, Belmont
Tel. +44 7926 880 738
daniel(at)belmont.online